Продается дом, 69.6 кв.м., /1 эт
Обзор№ - 521
| Стоимость | 2 300 000 |
|---|---|
| Комнат в доме | 4 |
| Категория земли | ИЖС |
| Тип комнат | смежные |
| Право собственности | Собственник |
| Тип парковки | На улице |
| Ремонт | Косметический |
| Категория земли Avito | Личное подсобное хозяйство (ЛПХ) |
| Способ связи avito | По телефону и в сообщениях |
| Материал стен (Авито дома) | Пеноблоки |
| Тип отопления cian | Автономное газовое |
| Тип дома cian | Кирпичный |
| Водоснабжение avito | Центральное |
| Канализация avito | Выгребная яма |
| Газ avito | В доме |
| Тип строения | Дом |
| Площадь, кв.м. | 69.6 |
| Площадь участка, сот | 35 |
| Этажность | 1 |
| Материал стен | Кирпич |
Адрес
| Населенный пункт | село Становой Колодезь |
|---|---|
| Улица | улица Центральная |
| Номер дома | 56 |
В избранное дом в Орловском районе
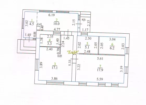
Продам жилой дом со всеми удобствами недалеко от города в селе Становой Колодезь. В доме 4 жилых комнаты: гостиная площадью 17, 1 кв.м, жилая комната пл. 17,9 кв.м и две небольших спальни 6,2 и 5,1 кв.м, кухня пл. 10 кв.м, санузел совмещенный пл. 3,3 кв.м.
Земельный участок правильной прямоугольной формы площадью 35 соток, обрабатывается, с различными плодовыми деревьями и кустарниками, имеются хозпостройки для содержания животных и птицы. Всепогодный подъезд, асфальтированная дорога.
В селе развитая инфраструктура: школа, детский сад, магазины, амбулатория, Покровская церковь, есть регулярное автобусное сообщение с городом, также имеется железнодорожная станция.

























